Lägaseparaator 1000/600
Euro-P separaator (lägaseparaator) vastab kõrgematele nõuetele, kõik lägaga kokku puutuvad osad on valmistatud täielikult roostevabast terasest ning on seega korrosioonile äärmiselt vastupidavad.
Läbimõeldud disain lubab seadet rakendada nõudlikes ja keerulistes tingimustes nii tööstuse kui põllumajanduse vallas.
Separaator sobib kiuliste ja muude tahkete osade vedelikust eemaldamiseks mitmesugustel otstarvetel. Võimalused ulatuvad allapanu ja toidu osakeste eemaldamisest lägast kuni biogaasi tootmisel substraadi eraldamise ning ka reoveest tahkete osakesete eraldamisele reovee käitlemisega tegelevates kohtades.
Separaator annab kõrge läbilaskevõime madala energiatarbe juures.
Harilikud kasutusalad
- Läga separeerimine
- Biogaasi tootmine
- Toiduainetööstus
Kuidas see töötab
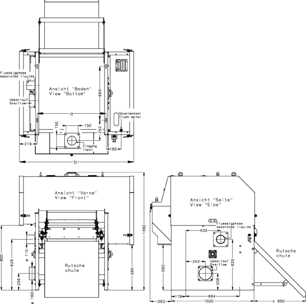
Separeeritavad vedelikud pumbatakse masina tagumisse ossa. Toorläga voolab pöörlevasse roostevabasse trumlisse, kus vedel osa voolab kogumisanumasse ja väljutatakse masina kõrvale. Ülevool ennetab ületäitumist, sisendvoolu kohandamist ei ole vaja (näiteks ebaühtlase voolu kompenseerimiseks, kui vedelikutase tünnis langeb). Hõljuvad kiulised ja muud tahked materjalid „pigistatakse välja“ kahes järgus kummikattega rullikude ja trumli vahel. Masina eesosas kraabib eraldatud kuiva tahke aine pöörlevalt trumlilt ära sünteetiline skreeper ning tahke aine libiseb eesmist šahti mööda minema.






